Проект №58 Двухэтажный дом 9х9

каркас из строганой доски
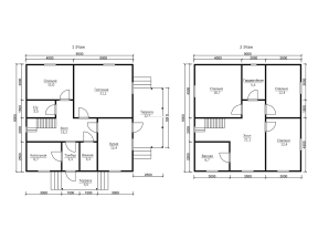
Создайте свой план для этого проекта
и отправьте его нам на расчет в один клик.
Каркасный дом (150 мм) 9х9 Толщина утепления 150 мм 4470300 Заказать
Каркасный дом (200 мм) 9х9 Толщина утепления 200 мм 4780300 Заказать

Воспользуйтесь нашим планировщиком, чтобы адаптировать уже готовый проект и получить свою личную планировку.

С использованием планировщика можно создавать планы, чертежи, эскизы, схемы дома с эркером, мансардой, с нужным количеством комнат. В результате вы получите индивидуальный проект с планировкой, который на 100% отвечает вашим потребностям.

Вы имеете возможность выбрать нужный вид кровли: четырехскатная, двускатная и вальмовая. Двухскатную считают наиболее популярной у малометражных построек.

Самые популярные размеры коттеджей и домов: мини - до 50 м2 (как правило, одноэтажные); компактные - от 70 до 100 кв. М (обычно двухэтажные); большие - от 150 квадратных метров и более.

Строим дуплексы - большие надежные каркасные дома с 2-мя входами на 2 семьи. Эти дома предполагаются для нескольких хозяев, они поделены на две части, для обоих половин - свой отдельный вход.


Наши работы

Перейти в галерею


Комплектация

Площадь застройки: 166.6 м2
Длина: 9 м
Ширина: 9 м
Общая площадь: м2
Исполнение Под ключ (с отделкой)
Фундамент Свайно-винтовой или ж/б сваи (рассчитываются отдельно).
Гидроизоляция фундамента Рубероид в два слоя.
Основание (обвязка) Из обрезного бруса 150х150 мм. 150х200 мм. согласно выбранной толщине утепления. Торцевая доска строганая 45х145/45х195+/-5 мм. согласно выбранной толщине утепления. Обработка антисептиком.
Цокольное перекрытие Строганая доска камерной сушки 45х145/45х195+/-5 мм. с шагом 590 мм. Обработка антисептиком.
Пол черновой Обрезная доска камерной сушки 20х100 мм.
Влаго-ветрозащита чернового пола Мембрана Ондутис А100.
Внешние стены Стойки каркаса из строганой доски камерной сушки 45х145/45х195+/-5 мм. с шагом 590 мм. Верхняя двойная и нижняя обвязки из строганой доски камерной сушки 45х145/45х195+/-5 мм. Разгрузочный ригель из строганой доски 45х145+/-5 мм. Укосины из строганой доски 20х95 мм.
Перегородки Стойки каркаса из строганой доски камерной сушки 45х95+/-5 мм. с шагом 590 мм. Верхняя двойная и нижняя обвязки из строганой доски 45х95+/-5 мм. Разгрузочный ригель из строганой доски камерной сушки 45х145+/-5 мм. Укосины из строганой доски камерной сушки 20х95 мм.
Сборка каркаса На гвозди.
Высота от пола до потолка Дом одноэтажный: 2,5 м. Дом с мансардой: 1-ый этаж- 2,5 м.
2-ой этаж (мансарда)- 2,3 м.
Дом в полтора и два этажа:
1-ый этаж 2,5 м.
2-ой этаж 2,4 м. в полутораэтажном доме
2,5 м. в двухэтажном доме.
Внешняя отделка стен Имитация бруса камерной сушки, сорт АВ, толщиной 17 мм. Монтаж через строганый брусок камерной сушки 45х45+/-5 мм. (вентилируемый фасад). Влаго-ветрозащитная мембрана- Ондутис А100.
Внутренняя отделка стен, перегородок Евровагонка камерной сушки, сорт АВ, толщиной 12,5 мм. по строганой рейке 20х40+/-5 мм. либо ГКЛ 12,5 мм.
Отделка потолка Евровагонка камерной сушки, сорт АВ толщиной, 12,5 мм. по строганой рейке 20х40+/-5 мм. либо ГКЛ 12,5 мм.
Пол чистовой Шпунтованная доска камерной сушки толщиной 35-36 мм. сорт АВ. по строганой рейке 20х40+/-5 мм. либо шпунтованная ДСП 16 мм. по разряженной обрешётке из строганой доски камерной сушки 20х95+/-5 мм.
Утепление (пол, потолок) Минеральная вата Knauf 150/200 мм. согласно выбранной толщине утепления.
Утепление стен Плитный утеплитель Rockwool, толщиной 150/200 мм. согласно выбранной толщине утепления.
Звукоизоляция перегородок Плитный утеплитель Rockwool, толщиной 100 мм.
Пароизоляция (стены, перегородки, пол, потолок) Плёнка Ондутис R70. Дополнительная герметизация нахлёстов/примыканий пароизоляционной плёнки клейкой лентой Delta.
Окна Двухкамерные стеклопакеты ПВХ белого цвета, профиль 60 мм. В комплекте: отливы, подоконники, москитные сетки.
Двери Входная- металлическая, утеплённая (Россия). Межкомнатные- филёнчатые.
Наличники на окна и двери Наличник деревянный, строганый, камерной сушки 70-90 мм. с двух сторон.
Лестница (при наличии второго этажа) Деревянная, одно или двухмаршевая. Перила- заводские резные, балясины- заводские точеные, устанавливаются стартовые точёные столбы. Ступени 40х200 мм. Тетива лестницы- 90х140 мм.
Крыша Двускатная, ломаная или вальмовая в соответствии с проектом.
Стропильная система Выполнена из строганой доски камерной сушки 45х145/45х195+/-5 мм. Шаг установки стропил 590 мм.
Обрешётка Выполняется из строганой доски камерной сушки толщиной 20х95+/-5 мм. Шаг крепления обрешетки 350 мм. Контробрешётка выполняется из строганого бруска камерной сушки 45х45+/-5 мм. Крепится по стропилам (вентиляционный зазор).
Подкровельная мембрана Ондутис А100
Кровельное покрытие (на выбор) Металлочерепица 0,45 мм. Цвет на выбор.
Фронтоны (при наличии) Каркас из строганой доски камерной сушки 45х145/45х195+/-5 мм. Обшиваются имитацией бруса камерной сушки, сорт АВ, толщиной 17 мм. Монтаж через строганый брусок камерной сушки 45х45+/-5 мм. (вентилируемый фасад). Влаго-ветрозащитная мембрана- Ондутис А100. Монтаж вентиляционных решёток.
Свесы крыши Ширина 400 мм. Подшиваются вагонкой камерной сушки, сорт АВ.
Терраса/балкон (при наличии) Устанавливаются опорные столбы из строганного бруса камерной сушки 140х140 мм.
Отделка потолка террасы/балкона Евровагонка камерной сушки толщиной 12,5 мм. сорт АВ.
Пол террасы/балкона Шпунтованная доска камерной сушки толщиной 35-36 мм. сорт АВ.
Ограждение террасы/балкона Перила- строганая доска. Балясины- точеные, фигурные. Либо ограждение в скандинавском стиле. Устанавливаются ступени у входа.
Допуск на геометрические параметры Составляет +/- 50 мм по длине с каждой стороны.
Допускается стыковка имитации бруса, вагонки и половой доски По всему периметру стен дома (если ширина и длина дома более 6,0 метров). Вагонки и доски пола в каждой отдельной комнате.
Допуски по имитации бруса, вагонке, доске +/- 5 мм.
В стоимость включена Доставка комплекта материала в радиусе 500 км. от г. Пестова Новгородской области и сборка дома на вашем участке.
Гарантия 5 лет.
Бытовка строительная 2,0х3,0 м. каркасно-щитовая. Стоимость 23000 руб. Остаётся на участке Заказчика.
Туалет 1,0х1,0 м. каркасно-щитовой. Стоимость 12000 руб. Остаётся на участке Заказчика.
Генератор Стоимость аренды на весь срок строительства 15000 руб. ГСМ за счёт Заказчика.

Постройка каркасных домов производится в двух видах: полностью под ключ и под усадку, когда дом отстаивается некоторое время.

Зимой специалисты советуют строить дом в морозную погоду, чтобы каркас не промок, в летнюю пору - не в дождливую.

Подходящими для сада или дачи являются дома на винтовых сваях, в нашем каталоге вы увидите одноэтажные и полуторатажные виды домов.

В случае если дом будет строиться для проживания круглый год, советуем теплые двухэтажные и одноэтажные коттеджи и дома на ленточных и плитных фундаментах.

Мы можем предложить два вида утепления: 150 мм и 200 мм. Каркасные дома с толщиной утеплителя сто пятьдесят миллиметров получаются дешевле, но не настолько энергоэффективными.

Дополнительные услуги


Дом из каркаса , согласно эскизу 58 двухэтажный с утепленной двускатной кровлей, выделяется экологической безопасностью, в связи с использованием древесно-стружечных плит, базальтовой и минеральной ваты, что создает отличную защиту от холода, идеальный микроклимат в доме. Нормы этого уютного гнездышка составляют 9х9 м., суммарная жилплощадь - кв.м.. Наша организация в минимальные сроки построит каркасный дом по персональному или типовому чертежу в Долгопрудном в оптимальное для вас время года и на любом варианте грунта.

Популярные проекты


Дома из бруса с верандой Каркасные дома 4х10 Одноэтажные бани из бруса
хит продаж
Тип:
Общая площадь: 2
2425800
от 2310300
хит продаж
Тип: с балконом, с большой террасой
Общая площадь: 2
4494300
от 4280300
хит продаж
Тип: с террасой
Общая площадь: 2
1900800
от 1810300
Дома из бруса

Заказать или задать вопрос



Заказать или задать вопрос

Заказать звонок